Prodotti destinati all’industria.
Condizioni generali di vendita disponibili sul sito
www.camozzi.com.
1
Pinze parallele a larga apertura Serie CGLN
MOVIMENTO >
CATALOGO
>
Release 8.8
/7.27.03
1
MOVIMENTO
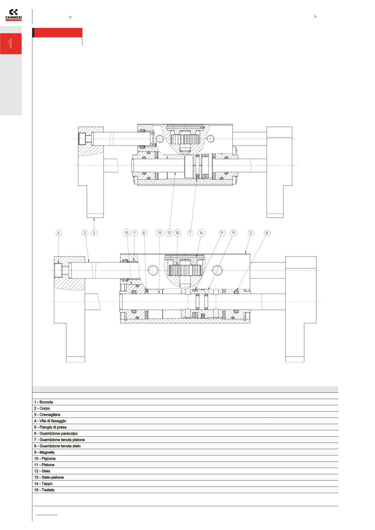
Pinza Serie CGLN - costruzione
ELENCO COMPONENTI
PARTI
MATERIALI
1 - Boccola
Bronzo
2 - Corpo
Alluminio
3 - Cremagliera
Acciaio Inox
4 - Vite di fissaggio
Acciaio
5 - Flangia di presa
Alluminio
6 - Guarnizione paracolpo
PU
7 - Guarnizione tenuta pistone
NBR
8 - Guarnizione tenuta stelo
NBR
9 - Magnete
Plastoferrite
10 - Pignone
Acciaio
11 - Pistone
Alluminio
12 - Stelo
Acciaio Inox
13 - Stelo-pistone
Acciaio Inox
14 - Tappo
Alluminio
15 - Testata
Acciaio




