NORTH AMERICAN CYLINDER & ACTUATOR CATALOG - page 343

The company reserves the right to vary models and dimensions without notice.
These products are designed for industrial applications and are not suitable for sale to the general public.
Hydro-Checks & Shock-Absorbers
Hydro-Checks & Shock-Absorbers
6
NORTH AMERICAN CYLINDER & ACTUATOR CATALOG
>
Release 8.5
320
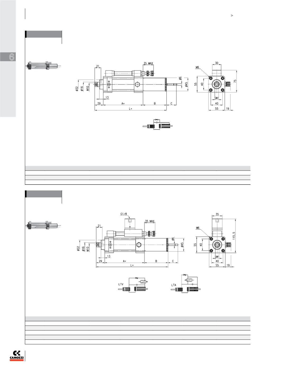
Hydrochecks Mod. 43N-LTO-40
DIMENSIONS (mm)
Mod.
Strokes (mm)
A+
B
C
L+
SW1
43
N-LTO-40
50-100
85
80
32
194
13
43
N-LTO-40
150-200
85
100
47
214
13
+ = add the stroke
Hydrochecks Mod. 43N-LTA-40 and 43N-LTV-40
On request
DIMENSIONS (mm)
Mod.
Strokes (mm)
A+
B
C
L+
SW1
43
N-LTA-40
50-100
85
80
32
194
13
43
N-LTA-40
150-200
85
100
47
214
13
43
N-LTV-40
50-100
85
80
32
194
13
43
N-LTV-40
150-200
85
100
47
214
13
+ = add the stroke
SEO Version

Warning.

You are currently viewing the SEO version of !text.
It has a number of design and functionality limitations.


We recommend viewing the Flash version or the basic HTML version of this publication.

1...,333,334,335,336,337,338,339,340,341,342 344,345,346,347,348,349,350,351,352,353,...406
Powered by: Camozzi Pneumatics Inc.