NORTH AMERICAN CYLINDER & ACTUATOR CATALOG - page 283

The company reserves the right to vary models and dimensions without notice.
These products are designed for industrial applications and are not suitable for sale to the general public.
ROTARY ACTUATORS AND GRIPPERS
Rotary Actuators and Grippers
5
NORTH AMERICAN CYLINDER & ACTUATOR CATALOG
>
Release 8.5
260
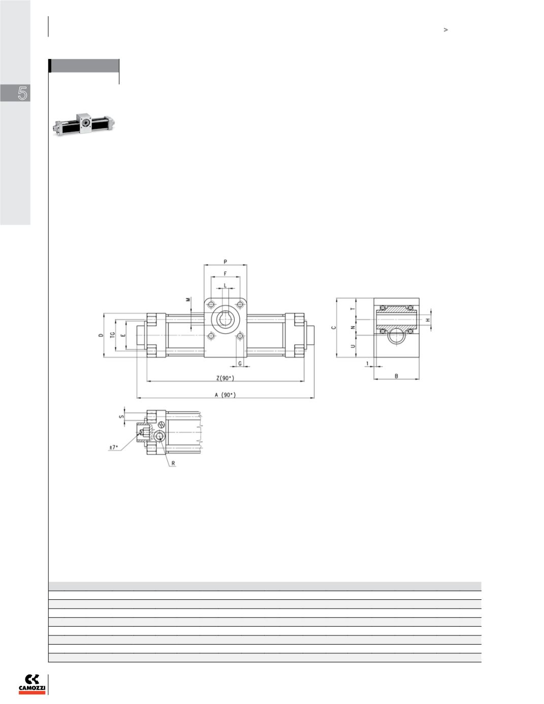
Rotating cylinders Series 18
*
increase in “A” and “Z” for each 90° of rotation
Note: Grease the rack using a suitable grease gun.
DIMENSIONS (mm)
Ø A
*
B
C D E
Øh8
F
G H
Øh7
L
M N P
R
S T
U TG Z
32
298
63
52
85
47
25 50
M6
15 5 17.3 26.5 68
G1\8 M6 34 24.5 32.5 254
40
298
63
56
89
54
32 50
M6
15 5 17,3 26,5 68
G1\4 M6 34 28,5 38,2 254
50
298
63
66
94
65
38 50
M8
15 5 17.3 26.5 68
G1\4 M8 34 33,5 46,6 258
63
366 75,5
80 111 78
35 60
M8
20 6 22,8
31
80
G3/8 M8 40
40
58,5 314
80
366 75,5
98 120 97
45 60
M10 20 6 22.8
31
80
G3\8 M10 40
49
72
314
100
426 100,5 118 153 116 45 80
M10 25 8 28,3
41
102
G3\8 M10 53
59
89
374
125
432 100,5 142 165 140 53 80
M12 25 8 28.3
41
102
G1/2 M12 53
71
110 381
Discontinued
Quantities Limited
SEO Version

Warning.

You are currently viewing the SEO version of !text.
It has a number of design and functionality limitations.


We recommend viewing the Flash version or the basic HTML version of this publication.

1...,273,274,275,276,277,278,279,280,281,282 284,285,286,287,288,289,290,291,292,293,...406
Powered by: Camozzi Pneumatics Inc.